2D/3D
Floor Plan Render Service
2D/3D Floor Plan Render for Your Business
Engage Buyers and Sell More
For property agencies, rendering a floor plan of the property you are selling can significantly impact your sale. A photorealistic 3D floor plan can create an emotional attachment for the prospective buyers, boost their faith in the project, and reduce unexpected surprises on your project delivery date.
Save Your Clients A Fortune
Having your floor plans rendered before construction saves your clients a fortune because all measurements are rechecked within the BCIN system (building code identification number system). It helps in the quick notice of flaws, technical errors, and other oversights, so they don’t order furniture that does not fit.
Get Ready for Online Market
The architectural industry has quickened its pace towards online business. To take a front seat in this emerging market, it’s wise to present your property virtually online starting from now. If you also run a website for your business, posting the rendered plan can also increase the conversion rate to some extent.
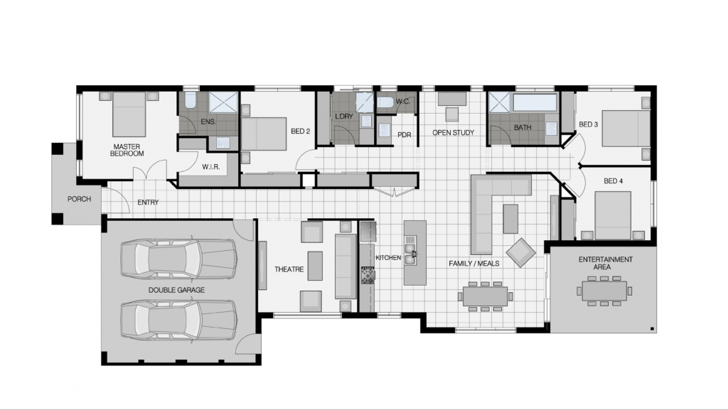
Imagist3ds Rendered Floor Plan
Plan Rendering Types We Offer:
1. 3D Floor Plan Rendering Service
A rendered 3D floor plan is the first step to take before putting the commercial or residential building into construction, remodeling or interior design. The overall layout, size and flow of the space such as the Enter and Exit point of the building, stairs, elevators, doors, windows, fixtures, electrical outlets, furniture, etc. are included.
This service is loved, and in popular demand, by companies working on projects such as:
- Restaurants & Cafes;
- Hotels & Shopping Malls;
- Hospitals;
- Offices & Schools;
- Warehouses;
2. 3D House Floor Plan Rendering Service
3D house floor plan is versatile and your ideal first choice, whether you are looking for a rendering solution for a simple one-bedroom house plan, tiny house plan, apartment, 4-bedroom home, condominium complex, townhouse, or themed pension. It shows the different units of a condo with a 3D colorized floor plan to allow potential buyers to make their choice.
3. 3D Site Plan Rendering Service
A 3D architecture site plan is to build a realistic 3D site plan model of a real estate development, or a warehouse from a blueprint design. It’s also used for landscape design and urban planning. A true-to-scale version of the rendered landscape/site plans determines if your proposal is accepted or rejected by regulatory bodies.
Retain Source Files for Unlimited Adaptability
1. Future Flexibility: Effortlessly adapt to changes – Retaining source files indefinitely allows for easy updates to your 3D Floor Plans, accommodating future renovations or modifications without starting from scratch.
2. Cost and Time Savings: Streamline updates – By having readily available source files, you can efficiently update existing renderings, saving valuable project timelines and reducing costs associated with recreating the entire floor plan.
3. Consistent Branding: Maintain visual harmony – Keeping source files ensures that future 3D Floor Plans align with your brand guidelines, reinforcing your brand image and creating a cohesive visual representation across projects.
Have a project in mind?
Send brief & get quote.
Why Outsource to Imagist3ds
The floor plan or site plan rendering can be too complicated to do it yourself especially if you are a green hand. It is a wise choice to outsource the floor plan rendering task to a reliable 3D visualization service like Imagist3ds. Let’s see how can Imagist3ds help?
Take Projects Worldwide
Imagist3ds works with real estate investors, developers, renovation contractors, homeowners, architect designers and marketing agencies from US, Canada, UK, Australia, India, China, Japan and some European countries; working remotely/online is not a barrier.
Top Quality is Assured
We spare no effort in offering as much interior details, lighting, materials, surrounding environments, and using the most advanced technology in adjusting brightness and contrast, to ensure the rendering is as natural and real as what you have in mind.
Unique Solution for Unique Project
Imagist3ds offers unique solutions based on our knowledge of client’s goals: To show the spatial relation of each room, placement of doors, windows and fixtures for proper ventilation: you need floor plan rendering. To show the location, topography, building orientation, landscaping, cars and people in relation to its context, you need a site plan rendering.
Smooth Workflow & Meet Deadline
Our CGI team consists of well-trained 3D modelers, 3D artists and post-production Photoshop designers, and a group of professional and passionate project managers. We strictly work on a smooth workflow, to ensure high quality rendering, quick turnaround, and to beat client’s deadline. Our follow-up is timely, and we send out daily progress update via email.
Workflow of 3D Archviz Project
Step 1. You send us the project brief (plans, drawings, 3D models etc. );
Step 2. We discuss details and deadline together and we send the quote;
Step 3. Start 3D modelling main building and send draft;
Step 4. Add material, textures, lighting and send rendering draft for review (Low-res with watermark) and send revision;
Step 5. Make high-res rendering, (animation) and post-production after draft rendering approved;
Note:
1. Still image rendering takes 3-10 days, animations take 2-4 weeks;
2. Final resolution of the rendering is 8,000 pixels;
Get A Quote
Tell us more: I need 4 renderings for our single family project. rendering for a new 6 apartment resort type develpment. restaurant exterior & interior render.
Testimonials
This is my first work with the company. The floor plan was drawn perfectly, the details are very photorealistic. We don’t even need any correction. We would definitely outsource more projects to Imagist3ds.
The project was done fast and of high quality. The company takes all my requirements into account and are responsive to my inquiry and correction feedback.
It is great working with this 3D rendering service provider. They start designing after thorough understanding of our requirements and always make rendering over our expectation.
Frequently Asked Questions
What is a floor plan visualization?
Can I do the 3D floor plan myself?
The quick answer is yes, you can create your own 3D floor plan.
But if quality is what you desire, you might spend more time getting the hang of the appropriate software. The long hours invested can strain your eyes, moreover, if floor plan rendering is not part of your daily job, purchase of the software and needed technology may not be cost-effective.
If you don’t have the necessary skill and technical know-how for rendering, and you don’t want to invest in a software, outsourcing will be the best choice for you. Imagist3ds invests in the most advanced technology, and the most powerful software to create a more detailed and attractive 3D floor plan.Outsourcing your project to us, is a guarantee for peace of mind.
Some of our customers do their floor plans themselves only as a reference file for other rendering services we provide, such as 3D interior rendering, architecture animation or VR.
What’s the cost of outsourcing 3D floor plans?
In general, outsourcing of floor plan is the most inexpensive type of rendering. The tiny house layout price ranges from $99 to $500, depending on whether you want a 2D or 3D floor plan rendering, colored floor plan or black and white line sketches, the size of the house and the rooms needed. The detail of the floor plan rendering also influences the price. For a more detailed price list of different rendering types, check this: 3D Rendering Price List.
